Claudia Cavallar
Grosse Neugasse 6/10
1040 Wien
web@claudiacavallar.at
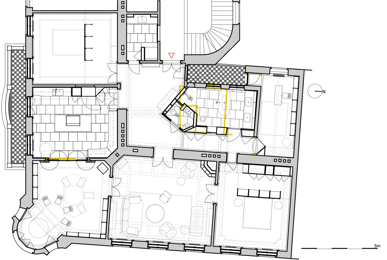
Umstrukturierung einer weiteren Wohnung aus dem frühen 20. Jhdt. unter Beibehaltung der typischen Raumgrößen. Verlegen der Küche in den Wohnbereich, Trennung der Schlafbereiche von Kindern / Gästen und Eltern und Schaffen der anschließenden Bäder. Herstellung eines "Umgangs" durch Einbeziehen des Klopfbalkons. (Baustellenfotos der Planerinnen)
Jahr: 2022-24 Ort: Dapontegasse, 1030 Wien
Bauherrin & Bauherr: Julia und Nikolaus Ganahl
In Zusammenarbeit mit: Lukas Lederer
Mitarbeit: Katharina Hohenwarter
Tischlerarbeiten: Tischlerei Pitzl Fliesenleger & Ofensetzer: Baresch Ofenbau- & Fliesenverlegungs-GmbH; Steinarbeiten: Andrea Benedetti; Stuck: Hannes Melichar
Fotos: Planerinnen